Project
BCSD Transportation Center
Client
Brockport Central School District
Description
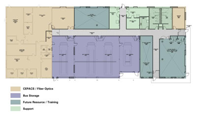
Design of a 27,500sf pre-engineered structure on a 21 acre site for 168 cars and 132 buses.  The bond issue involved reconstruction and site development of the existing bus storage facility.
Cost
$13,875,000 Bond Issue